Aaron Wright ::
Industrial Designer, Experience Researcher,
Architectural Designer

Extras

Tasty Tidbits in Digital Fabrication
 

c.2013 // 2018
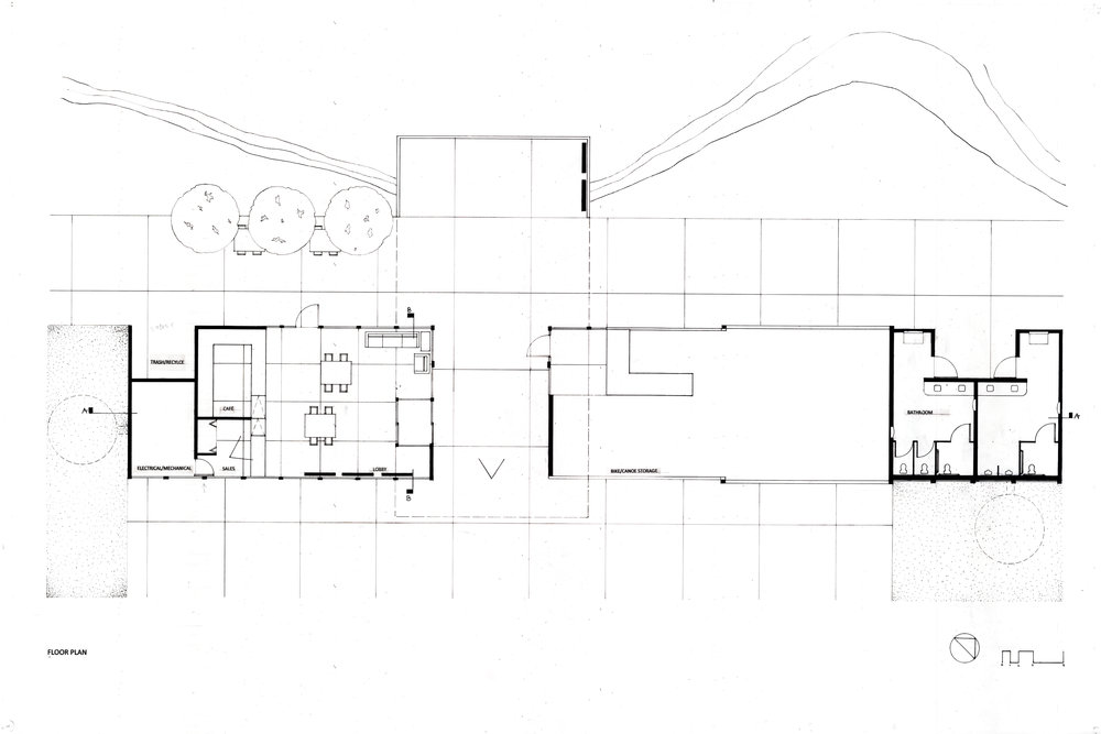
Tags: Architecture Competition, Mapping, Landscape Architecture


Toolkits: Adobe Creative Cloud, Revit, Grasshopper, Rhino, Taly, Hand-Drafting, Vray

Bee Breeder’s: An Architecture
Collaborative project with Scott Wall + Kyle Johannes + Sam Sowell



Endevours in Mapping + Graphic Representation



 






Drop me a line at daaronwright@gmail.com. We can talk about collaborating, or just say hello.

Currently located in Boulder, Colorado, 80304 USA